中古住宅
物件所在地
上田市中之条7-1
- 価格
- 1,200万円
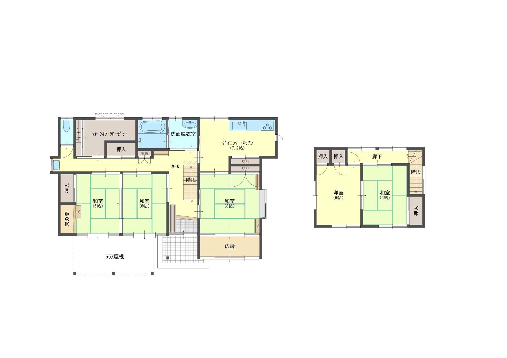
| 土地面積 | 287㎡(86.8坪) |
|---|---|
| 延べ床面積 | 116.13㎡(約35.1坪) |
| 構造 | 木造2階建 |
| 築年 | 昭和61年7月 |
物件概要
| 所在地 | 上田市中之条7-1 |
|---|---|
| 交通 | 上田交通別所線三好町駅より徒歩5分 |
| 土地権利 | 所有権 |
| 地目 | 宅地 |
| 環境 | 良好 |
| 用途地域 | 第一種低層住居専用地域 |
| 建ぺい率 | 80% |
| 容積率 | 50% |
| 小学校 | 上田市立南小学校 |
| 中学校 | 上田市立第四中学校 |
| 現況 | 空き家 |
| 引渡 | 即時 |
| 設備 | 電気、水道、都市ガス、公共下水道 システムキッチン、ユニットバス、水洗トイレ、エアコン2台 FF式ガスストーブ |
| 取引態様 | 媒介 |
| 媒介手数料 | 46.2万円(税込) |
| 接道状況 | 南4m公道、接面15m |
| その他 | 現状でのお引渡しとなります。 |
特徴項目
- 南道路で日当たり良好。
- 全居室が南向きで、とても明るいです。
- 水回りは一度リフォームされており、築年数のわりに新しいです。
- 敷地北側に1.3坪程度の物置があるので、タイヤ等の保管に便利です。
物件画像


間取り図




